| 
	JTZ系列礦用本質安全型金屬探測裝置是本公司生產的一種用于探測煤礦井下皮帶輸送機上的金屬檢測裝置系列產品,它是由主機、探測傳感器和速度傳感器、接頭監測傳感器及礦用隔爆兼本安型不間斷電源箱五部分關聯設備構成。適用于在散裝物料皮帶輸送過程中,檢測混雜在物料中間對皮帶輸送(包括鋼絲繩芯帶)設備有危害的金屬鐵件,能準確地探測出混在煤層中的鐵、鋼、錳鐵、不銹鋼、銅、鋁等各種金屬雜物,在探測器的靈敏度調整以及克服磁性物料的影響方面有獨特的優點。調試人員只需按照說明書步驟,觀察指示燈的明滅,便可容易的使探測器調節至最佳狀態。除了本機上的報警指示外,還具有外接輸出并指示金屬雜物位置,可與本公司各類除鐵器配套使用,降低能耗,延長除鐵器的使用壽命。本系列產品已獲《礦用安全標志證書》。
 
	一、主要技術指標 
 
	1.1控制器ZTD660/380(煤安證書編號:MAB150948-MAB150951) 
 
	·外殼型式:戶外壁掛式雙層防水、防塵、耐腐蝕不銹鋼結構。
 
	·外形尺寸:360×315×130
 
	·重    量:8.5Kg
 
	·電源:隔爆兼本質安全型電源繼電器箱
 
	·功    耗:<20W
 
	·環境溫度:-20℃~+50℃
 
	·適用帶速:0.5~ 10.0m/s
 
	·探測計數:5位(00000~99999),手動復位
 
	·防護等級:IP54
 
	·控制器與傳感器之間電纜長度:≤5m(標準型)
 
	1.2傳感器GTD型(煤安證書編號:MFB150281-MFB150287) 
 
	·結構形式:單匝式可拆卸銅管
 
	·適用帶寬:1200~2000mm
 
	·涂 裝 色:鐵灰
 
	·探測靈敏度:見表1 
 
	JTZ系列型傳感器檢測靈敏度                                       表1 
 
	  
	二、裝置構成及安裝尺寸 
 
	TZ系列型金屬探測器由傳感器和控制器兩部分構成,構成關系如圖1所示。
 
	  
	圖1   JTZ系列型金屬探測器的構成
 
	
 
	型號:JTZ系列型-1200mm-2000mm,單匝銅管可拆卸式傳感器規格
 
	JTZ系列-1200mm-2000mm型傳感器檢額定測靈敏度                             表2 
 
	  
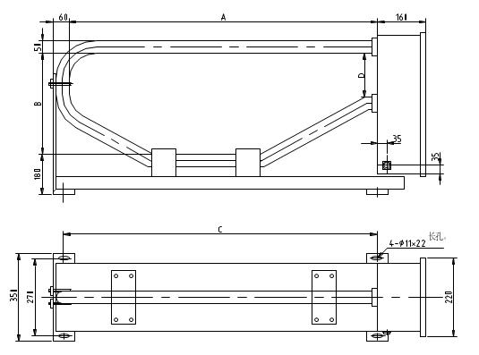
	JTZ系列-1200mm-2000mm型單匝銅管可拆卸式傳感器外形及安裝尺寸
 
	適用于:1200mm-2000mm帶寬度的皮帶運輸機的傳感器外形及安裝尺寸
 
	  
	圖2   1200mm-2000mm寬度輸送帶的傳感器外形圖
 
	JTZ系列型 1200mm-2000mm寬度輸送帶的傳感器規格尺寸                     表 3 
 
	  
	
 
	金屬探測裝置應用現場 
 
	  |